加入收藏
|
设为主页 |
联系我们
热线服务电话:
0510-88221152
昊睿主页
公司简介
产品中心
经营理念
在线留言
联系方式
.
平车系列
.
焊接操作机系列
.
焊接滚轮架系列
.
焊接变位机系列
联系我们
无锡市昊睿传动机械有限公司
地址: 无锡市惠山区阳山工业园恒通西路7号
联系人: 龚先生
手机: 13255215999
电话: 0510-88221152
传真: 0510-88227292
网址: www.haoruipc.com
产品中心
PRODUCTS
您当前位置 >> 产品中心
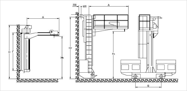
平台式焊接操作机
平台式焊接操作机由平台、立架(柱)、台车、平台护栏、扶梯及电控系统
等组成。采用单轨或双轨行走,行走机构有电机减速机驱动,悬臂架上端与厂房支
柱上的型钢连接形式(双轨式须在台车上或立架上放置配重),焊接平台可升降,
链条传动,提升电机带电磁制动,涡轮蜗杆传动,并配有配重,平台固定在滑板上
,平台上装有横梁,焊机放置在行走架上。平台可供操作人员操作、维修、焊剂
输送回收机等。平台周围有护栏。扶梯是供工作人员上下平台,带安全扶手。
上一页:焊接操作机(焊接十字架)
下一页:龙门式焊接操作机
公司简介
|
产品展示
|
经营理念
|
在线留言
|
联系我们
Copyright 2012 无锡市昊睿传动机械有限公司
苏ICP备10210778号-1